
尺 寸面寬 25.6米 進深 26.0米
建筑面積247.0㎡
設計機構易蓋房殊舍建筑
基地狀況
基地位于十字路口東南角,用戶須要在挨近馬路的一側設置商鋪,內部還與院子貫串通。

成效展現
總體建筑利用華夏的傳統四合院布局,除堂屋局部二層之外,其他的仍舊為一層雙坡頂,主通道采取新中式的解決手段,圍墻則是采取紅色墻體加青磚檐口,充足細節;

△鳥瞰圖
堂屋局部二層做成私密的主人房間,設置有寢室、起居室、書齋等性能空間。室外露臺亦可強化全部院落的聯絡;

△鳥瞰圖
主通道線腳和屋檐細節相對充足,起到引人注重的功效,木色大門和局部鏤空的深灰色網格相得益彰,雙側設置竹池,寓意節節升;

△入門成效圖
北側朝向馬路,因此窗臺相對很高,阻隔視野交流,但不牽連性能性。對外運營的商鋪則采取落地窗,視線寬闊;

△商鋪成效圖
走進大門,正對著便是一個具有懷舊情調的屏風,隱約約約能夠看到一棵正在茂盛生長的樹,透過班駁的樹葉,即可看到廂房;

△天井成效圖
堂屋正對的圍墻上做了一個山川抽象構筑物,配以柱子做成的布景墻,后面則是淺池塘中孤傲存在的木質平臺,藤條編制的對坐茶椅寧靜地坐在上面,此空間可供主人小憩、會談或飲茶之用。

△天井成效圖
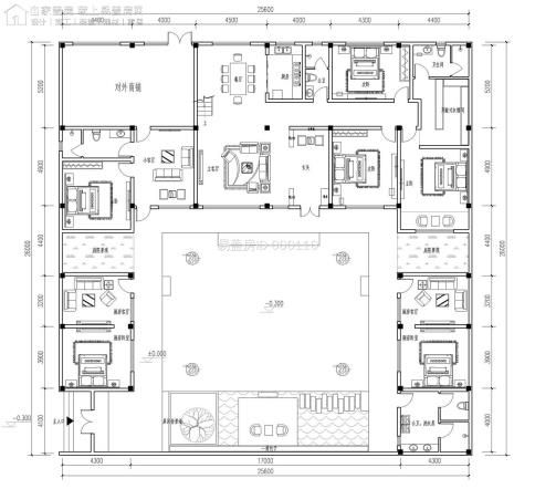
圖紙核心
首要設計還是采取傳統四合院的設計,對外商鋪設有寢室客堂獨立衛生間,除主臥設有獨立衛生間,其余次臥均應用客衛~

△一層平面圖
二層設計更多是私家應用,留有私家空間,設有書齋,日式寢室,茶樓,還有一個露臺,強化院落聯絡。

△二層平面圖

△東立面圖

△西立面圖

△南立面圖

△北立面圖